Twój koszyk
W koszyku nie ma jeszcze produktów
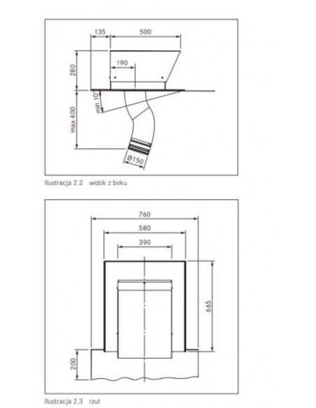
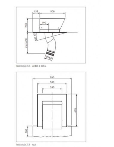
Wentylator dachu ceglanego EC BORA ULZ
Wentylator dachu ceglanego EC BORA ULZ
Dane techniczne:
- Napięcie przyłączenia: 220 - 240 V
- Częstotliwość: 50 Hz
- Moc pobierana: 206 W
- Zużycie prądu: 1,66 A
- Temperatura otocznia, maksymalnie: 70°C
- Natężenie przepływu, maksymalnie: 880 m³/h
- Ciśnienie statyczne, maksymalnie: 633 Pa
- Wymiary (szer. x głęb. x wys.): 390 x 500 x 280 mm
- Masa (łącznie z dodatkowym wyposażeniem/opakowaniem): 16,5 kg
- Materiał obudowy ocynkowana blacha: stalowa / stal szlachetna
- Podłączenie kanału, średnica: Ø 150 - 155 mm
- Przewód doprowadzający energię elektryczną: 10 m
- Przewód sterowania: 10 m
ULZ
Nowy produkt
2021-07-05
Brak opini

